BenAas 1.2 er den "smalere" delen av bygget.
Denne delen av bygget har tidligere huset bedrifter som Lafteverket, Nordekk, og også Cipax Nord den tiden de benyttet hele bygget.

Enheten har hovedinngang til kontordelen fra sørvest, og på motsatt side av bygget er det to industriporter for adgang til garageanlegget. Begge industriportene er elektrisk og fjernkontrollert.
Denne avdelingen er ideell for en mindre bedrift hvor en ønsker kontorlokaler med garderobe osv. og samtidig ønsker et garageanlegg for maskiner og utstyr.
Denne avdelingen benyttes idag av BenAas Eiendom as selv, men kan bli gjort tilgjengelig for langtidsleie om ønskelig.
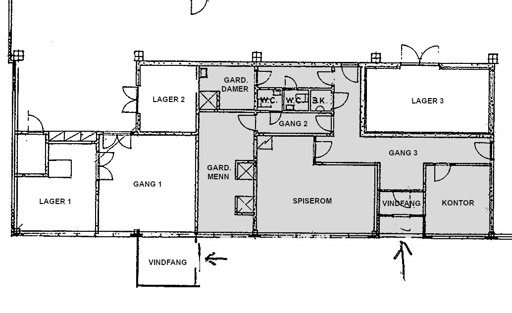
Kontordelen av denne enheten (uthevet i grått på bildet under) er idag tilgjengelig for utleie.
På plantegningen ser du BenAas 1.2 uthevet i blågrå farge, og derved hvilken del av bygget som tilhører denne utleiedelen.
Plantegninger:


